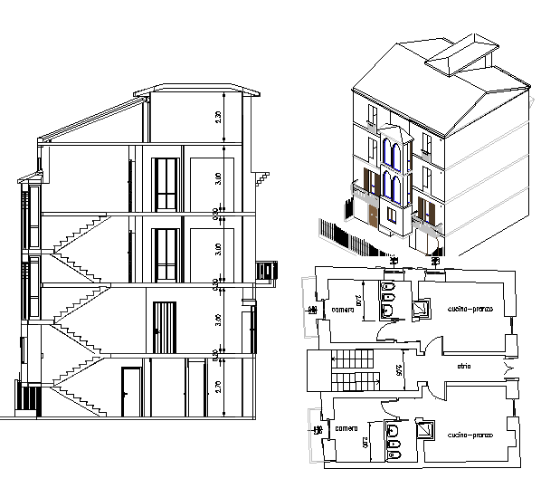
AddCAD BIM, è un software applicativo CAD parametrico che permette di effettuare una progettazione completa 2-3D di nuove costruzioni e di ristrutturazioni edilizie. Presente sul mercato da oltre 20 anni per diverse piattaforme CAD, compreso compreso GstarCAD rappresenta un punto di riferimento per tutti i progettisti e tutti i lavori di progettazione architettonica..
I punti di forza di AddCAD BIM per GstarCAD: